Landskronavägen 5

Helsingborg, Kontor / , 236 kvm

  • Storlek
    236 kvm
  • Lokaltyp
    Kontor /
  • Ort
    Helsingborg
  • Område
    Hästhagen
  • Adress
    Landskronavägen 5

Beskrivning

Nu finns möjlighet att hyra trevliga kontorslokaler med utmärkt pendlingsläge, nära Ramlösa station i Helsingborg. Lokalerna är fördelade på två plan och omfattar tio kontorsrum/arbetsplatser samt ett konferensrum. Här finns även pentry och personalrum, liksom dusch och omklädningsrum – allt för en bekväm och funktionell arbetsmiljö.

Lokalerna finns i kvarteret Hästhagen som är ett område under förändring. Historiskt har området i första hand varit inriktat på industri och logistik men för några år sedan påbörjades en transformering med större fokus på kontor, utbildning, hälsa och fritid samt goda möjligheter för citylogistik.
Se 360 drönarvy

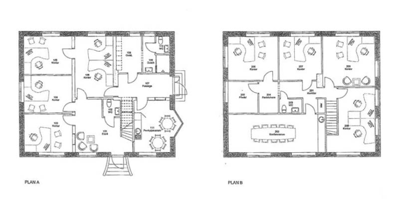
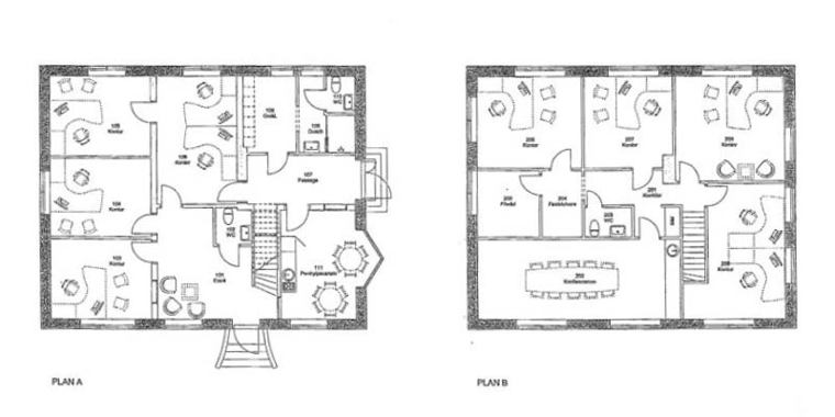
Planlösning

Kontor i två plan fördelade på tio kontorsrum/platser samt konferensrum. Pentry och personalrum samt dusch och omklädningsrum finns.

Beskrivning av ytor

2 plan

Kommunikationer

Bra läge nära E6, Ramlösa station och bussförbindelser. Vägnätet är väl utbyggt både in och ut från Helsingborgs centrum.

Parkering

Goda parkeringsmöjligheter i direkt anslutning till lokalen.

Uthyrningsinformation

Vi erbjuder givetvis marknadsmässig hyra och tar gärna en dialog kring kostnader utifrån omfattning och nivå på anpassningar av lokalen.

Tillträdesinformation

Omgående

Karta

Planlösning

Planlösning

Kontakt

Joakim Hägg

Joakim Hägg

Kommersiell förvaltare

0725-100315 joakim.hagg@catena.se

Intresseanmälan

Färdigt meddelande
Meddelande
Företag
Namn
Mobilnummer
Email